Beratungstermin vereinbaren: 09172 6845303

Arbeiten in Georgensgmünd

Repräsentative Räume
für Büro oder Praxis.

Arbeiten in Georgensgmünd

Repräsen­tative Räume für Büro oder Praxis.

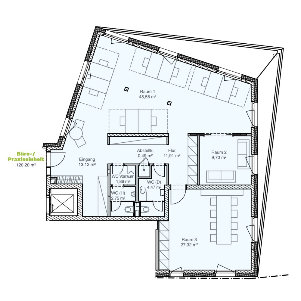
Büro-/Praxiseinheit

Haus 2 | Obergeschoss 1
Fläche 120,20 m²
Raum 1
48,58 m²
Raum 2
9,70 m²
Raum 3
27,32 m²
Eingang
13,12 m²
Abstellkammer
0,49 m²
Flur
11,91 m²
WC (Herren) + Vorraum
4,61 m²
WC (Damen)
4,47 m²

Büro-/Praxiseinheit

Haus 2 | Obergeschoss 1
Fläche 120,20 m²
Raum 1
48,58 m²
Raum 2
9,70 m²
Raum 3
27,32 m²
Eingang
13,12 m²
Abstellkammer
0,49 m²
Flur
11,91 m²
WC (Herren) + Vorraum
4,61 m²
WC (Damen)
4,47 m²
Geo Pur Pleinfelder Straße

Termin
sichern.

WHR GmbH & Co. KG
Pleinfelder Str. 30
91166 Georgensgmünd

Diese E-Mail-Adresse ist vor Spambots geschützt! Zur Anzeige muss JavaScript eingeschaltet sein!
09172 6845303


Dipl.- Ing. Wolfgang Braun:
 0151 57414463

Dipl.- Ing. (FH) Ralph Braun:
0173 3982799

© 2015- Werbeagentur BLÖCHER.
Alle Rechte vorbehalten.
Wir benutzen Cookies

Wir nutzen Cookies auf unserer Website. Einige von ihnen sind essenziell für den Betrieb der Seite, während andere uns helfen, diese Website und die Nutzererfahrung zu verbessern (Tracking Cookies).

Sie können selbst entscheiden, ob Sie die Cookies zulassen möchten. Bitte beachten Sie, dass bei einer Ablehnung womöglich nicht mehr alle Funktionalitäten der Seite zur Verfügung stehen.